Sanierung fast fertig – moderne 4-Raumwohnung mit Terrasse sucht neue Mieter

Zurück

Details der Immobilie

ID
2026/SK/SS1EG2
Ort
39288 Burg (Sternstraße)
Objektart
Wohnung
Zimmer
4
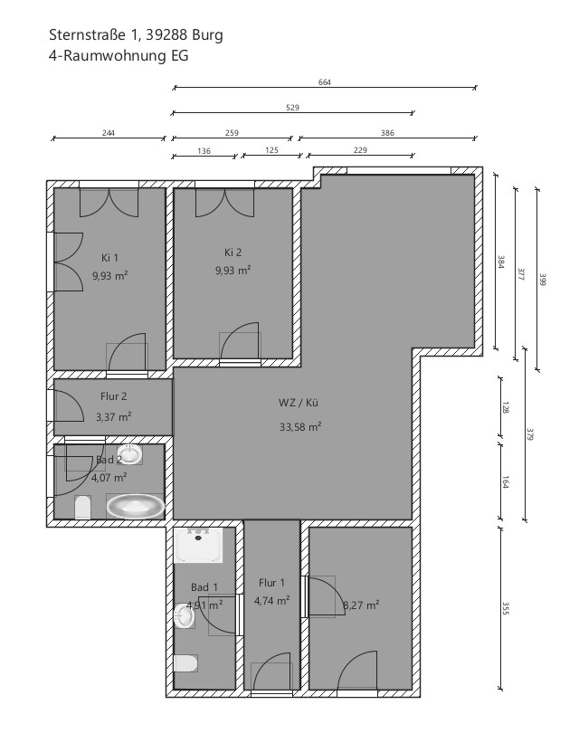
Wohnfläche
78,80 m²
Schlafzimmer
3
Badezimmer
2
Letzte Modernisierung
2026
Verfügbar ab
sofort
Garagen
0
Carports
0
Stellplätze (Duplex)
0
Stellplätze (Freiplatz)
0
Stellplätze (Parkhaus)
0
Stellplätze (Tiefgarage)
0
Stellplätze (Sonstige)
0
Kaltmiete
811,64 €
Warmmiete
992,88 €
Nebenkosten
63,04 €
Heizkosten
118,20 €

Infrastruktur

Weitere Ausstattungsmerkmale

Sat-TV Gerät
Barrierefrei
Abstellraum

Objektbeschreibung

In der Sternstraße 1 in 39288 Burg wird eine hochwertig sanierte 4-Raumwohnung im Erdgeschoss eines gepflegten Mehrfamilienhauses zur Vermietung angeboten. Die umfassende Komplettsanierung wird bis Januar 2026 abgeschlossen und bietet zukünftigen Mietern ein modernes und komfortables Wohnumfeld.

Die Wohnung überzeugt durch ihre zeitgemäße Gestaltung und einen großzügigen, offen konzipierten Wohn- und Küchenbereich mit einer Fläche von über 33 m², der ein angenehmes Raumgefühl und vielfältige Nutzungsmöglichkeiten bietet. Hochwertige Gestaltungselemente sowie integrierte Deckenstrahler verleihen den Räumen ein modernes und stilvolles Erscheinungsbild. In mehreren Zimmern sorgen bodentiefe, doppelt verglaste PVC-Fenster für eine besonders helle und freundliche Atmosphäre.

In allen Wohnräumen einschließlich der Küche wurde modernes Laminat verlegt, das sowohl optisch ansprechend als auch pflegeleicht ist. Neben dem Wohnbereich stehen drei weitere Schlafzimmer zur Verfügung, die sich ideal als Schlaf-, Kinder-, Arbeits- oder Gästezimmer eignen.

Die Wohnung verfügt über zwei vollständig sanierte Tageslichtbäder, von denen eines mit einer Dusche und das andere mit einer Badewanne ausgestattet ist. Beide Bäder sind teilweise gefliest, der Fußboden ist vollständig gefliest. In einem der Bäder besteht zudem die Möglichkeit, eine Waschmaschine aufzustellen und zu betreiben.

Derzeit ist keine Einbauküche vorhanden. Auf Wunsch kann jedoch in Absprache mit dem Eigentümer eine Einbauküche gestellt werden. Zusätzlich gehört ein separater Abstellraum zur Wohnung und bietet praktischen Stauraum.

Ein besonderes Highlight stellt die zur Wohnung gehörende Terrasse dar, die den Mietern einen ruhigen Rückzugsort im Freien bietet und sich ideal für entspannte Sommerabende eignet. Die Beheizung erfolgt über eine Gaszentralheizung, ein Energieausweis liegt vor.

Diese Wohnung eignet sich hervorragend für Familien oder Paare mit Platzbedarf, die modernes Wohnen mit großzügigem Grundriss und Außenbereich in attraktiver Lage von Burg schätzen.

Lage

39288 Burg liegt im Bundesland Sachsen-Anhalt, ungefähr 25 Kilometer nordöstlich von Magdeburg. Die Stadt ist von einer landwirtschaftlich geprägten Umgebung umgeben und liegt an der Ehle, einem kleinen Fluss. Nördlich von Burg erstreckt sich der Fiener Bruch, ein Feuchtgebiet.
Das Mehrfamilienhaus liegt in Innenstadtnähe. Ein Supermarkt ist fußläufig erreichbar. Auch weitere Einkaufsmöglichkeiten, Ärzte und anderen Einrichtungen des öffentlichen Lebens sind mit kurzen Wegen erreichbar.

Ausstattung

- Offene Küche mit Wohnzimmer
- weitere 3 Schlafräume mit teilweise bodentiefen Fenstern
- 2 Badezimmer mit Dusche bzw. Badewanne
- Gaszentralheizung
- Energieausweis
- Terrasse
- Abstellraum

Sonstige Angaben

Alle Angaben sind ohne Gewähr und basieren ausschließlich auf Informationen, die uns von unserem Auftraggeber zur Verfügung gestellt wurden. Wir übernehmen keine Gewähr für die Vollständigkeit, Richtigkeit und Aktualität dieser Angaben. Die Grunderwerbsteuer, Notar- und Grundbuchkosten sind vom Käufer zu tragen. Im Übrigen gelten unsere allgemeinen Geschäftsbedingungen. Irrtum und Zwischenverkauf/-vermietung vorbehalten.

Zurück

Ihr Ansprechpartner

Steffen König

Immobilien-Anfrage

* Pflichtangabe